新築外構工事ならお任せ下さい!

東京都|高級感あるシックモダンな新築外構施工例

 場所 :東京都

施工期間:約1.5か月間

概算費用:1000万円~ ※料金は工事の内容・工事の範囲・周辺環境により異なります。

デザインのポイント

建物のデザインにこだわったお施主様からお依頼いただきました。

ファサード空間はブラックのヒシガタのタイルを使用したり、デザインパネルを設置したりして敷地全体の全体の統一感を保ちつつ、特徴のある外構になっています。

お庭空間は目隠しをしつつ光を取り入れられるポリカのスクリーンを設置しました。リビング・ダイニング窓の前にはアクセントとなるデザインパネルをご提案させていただきました。目隠しをすることで広いタイルテラスもプライベート感があり使いやすい空間になっています。

完成写真(ファサード)

完成写真(お庭)

駐車場・門袖

境界塀をアートボードで隠ししつつアクセンにデザインパネルを設置!

宅配Boxと一体型になったシンプルポストをヒシガタ タイルとガラスパネル共に設置!

目隠しスクリーン

下部を空けて風の通りを確保しつつ目隠しスクリーンを設置!

お客様とお打合せしながらデザインパネル後ろにブラックのボードを設置してより綺麗になりました

ライティング(ファサード)

門袖タイル・ガラス・床の乱形石・植栽それぞれをライトアップ!

ライティング(お庭空間)

デザインパネルにライト設置!

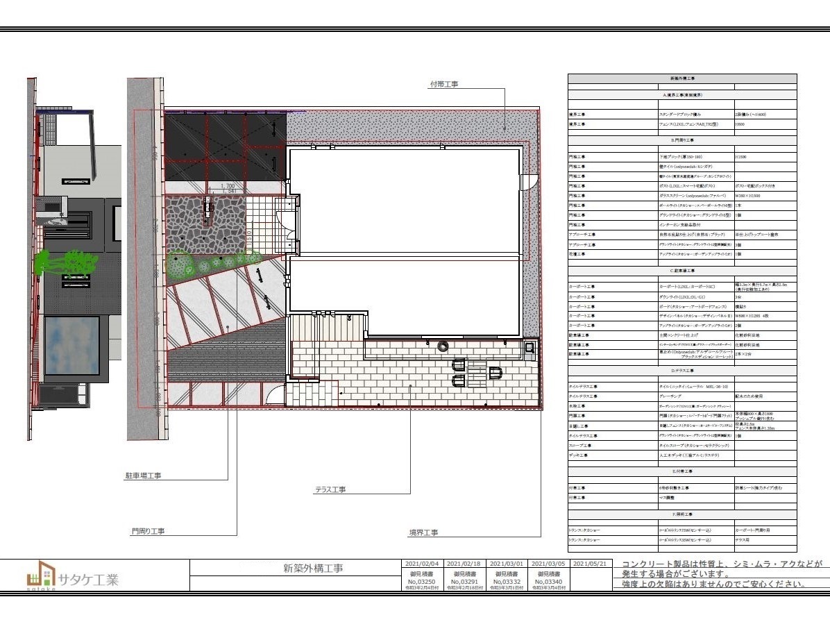
プランニングシート

・アプローチ
・門袖(宅配ボックス付き)
・駐車場(3台)
・タイルテラス(目隠しスクリーン)

工事スタート
すきとり(土撤去)

駐車場
コンクリート打設準備①

駐車場
コンクリート打設準備②

駐車場
コンクリート打設準備③

駐車場
コンクリート打設

駐車場
​コンクリート打設

駐車場
インターロッキング下地

駐車場
インターロッキング敷き

駐車場
化粧砂利敷き

玄関ポーチ
タイル下地作成①

玄関ポーチ
タイル下地作成②

玄関ポーチ
タイル貼り工事

アプローチ
乱形石貼り工事

タイルテラス
下地ブロック積み工事

タイルテラス
目隠しスクリーン柱組立①

タイルテラス
目隠しスクリーン柱組立②

タイルテラス
目隠しスクリーン柱固定

タイルテラス
下地コンクリート打設準備①

タイルテラス
下地コンクリート打設準備②

タイルテラス
下地コンクリート打設

タイルテラス
タイル貼り工事

タイルテラス
目隠しパネル設置

タイルテラス
デザインパネル設置


人工木デッキ設置

門袖
下地ブロック積み工事

門袖
ガラスパネル設置

門袖
壁タイル貼り工事

駐車場
カーポート設置

駐車場
目隠しボード・パネル設置


植栽植込み

新築外構工事関連カテゴリー・関連リンク

こちらのページも、皆様によく見ていただいているページです。

新築エクステリア(外構)について頂くご質問

ここではエクステリア(外構)リフォームにご興味のある方から頂くご質問をご紹介します。

職人さんは下請け業者の方が来るの?

一部の工事を除いては、ほぼ自社職人がお伺いさせていただいています。

東京エクステリアデザイン.comの3つの特徴

エクステリア専門店としての豊富な経験と技術力

地域密着型(東京都板橋区、練馬区、杉並区、中野区、新宿区、豊島区、文京区、北区など)

受賞歴も多数!オンリーワンのエクステリアデザインをご提案。

詳しくはこちらをクリック

お問合せ

お気軽にお問合せ下さい

お電話でのお問合せ

048-424-8842

受付時間:9:00~17:00(日祝を除く)