新築外構工事ならお任せ下さい!

東京都板橋区|特徴的なアプローチの新築外構工事例

場所:東京都板橋区     施工期間:約3週間

概算費用:100~150万円  料金は工事の内容・工事の範囲・周辺環境により異なります。

デザインのポイント

お客様のご要望もあり階段を浮き階段風デザインのアプローチとなっています。また、花や葉などで季節を楽しめる植栽を取りいれています。

施工前

施工後

担当工事スタッフ

施工後

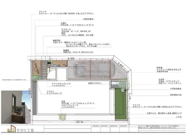
プランニングシート

完成イメージ

プラン仕様、商材の説明。

アプローチ…コンサート平板を使用し浮いているように。ラインライトで夜の印象もアップ!

平板〈TOYO工業:スギーペイブ〉 照明〈LIXIL:シンプルラインライト〉

駐輪場…骨材を使用した洗い出し仕上げ風舗装。〈四国化成:リンクストーンF〉

工事スタート

タイル下地

機能門柱設置

三協アルミ

セレージュ1型

タイル貼り

コンクリート打設準備

土間コンクリート打設

土間コンクリート

刷毛引き仕上げ

平板設置

フェンス柱取付

化粧砂利敷き目地

リンクストーン床舗装

四国化成

リンクストーンF

植栽植込み

ブロック積み
植栽植込み

TOYO工業

バンダブリックウォール

人工芝敷き

照明取付

フェンス取付

タカショー

センシア横パネル

セピアブラウン

東京都板橋区|特徴的なアプローチの新築外構工事
工事スタッフ日誌

スタッフのよる、工事の進捗の様子が綴られている日誌です。

新築外構工事関連カテゴリー・関連リンク

こちらのページも、皆様によく見ていただいているページです。

新築エクステリア(外構)について頂くご質問

ここではエクステリア(外構)リフォームにご興味のある方から頂くご質問をご紹介します。

職人さんは下請け業者の方が来るの?

一部の工事を除いては、ほぼ自社職人がお伺いさせていただいています。

東京エクステリアデザイン.comの3つの特徴

エクステリア専門店としての豊富な経験と技術力

地域密着型(東京都板橋区、練馬区、杉並区、中野区、新宿区、豊島区、文京区、北区など)

受賞歴も多数!オンリーワンのエクステリアデザインをご提案。

詳しくはこちらをクリック

お問合せ

お気軽にお問合せ下さい

お電話でのお問合せ

048-424-8842

受付時間:9:00~17:00(日祝を除く)