048-466-0607
Mail
info@tokyo-exteriordesign.com

職種紹介

【お客様の想いをカタチに!】

何もないところや外周りの不便を感じているところをデザインする仕事です。お客様と直接お打合せをしてご要望をくみ取り、現実にしていきます。

お客様にとって満足いただける、オンリーワンの空間をデザインするためには、お客様のご希望やその土地にあった商品や材料の選定をしていきます。商品の仕組みや構造など、勉強の日々ですが、実際に自分でご提案したデザインが、出来上がったときのやりがいは大きいです。

デザインするだけでなく実際に工事している現場にいき工事の進捗確認を行いつつ、現場技術者スタッフや監督と設置位置や高さなど、より良く仕上がるよう打合せしていきます。

仕事の様子

プラン作成の様子

お客様と打合せ

工事職人スタッフと打合せ

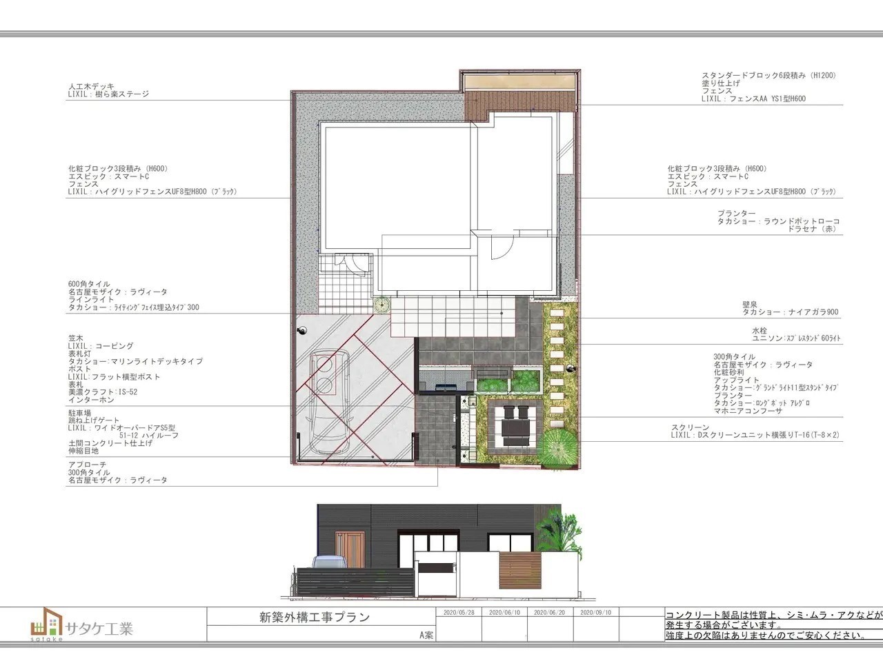
プランニングシート

情報発信中!

現職のスタッフに仕事のやりがいや入社のきっかけについてインタビューしました。
就活のヒントにどうぞご覧ください!

期間限定で人事ブログの更新を行っています。
仕事の様子や就活についてなどについてブログを上げているので是非見てください!

会社概要
 
若手社員の
仕事の様子
新卒募集要項